Navigation aufklappen/zuklappen
Home
Service
So finden Sie uns
Projekte
LKW-Aufbau, Rampen
Pferdelaufband
Pferde Vibrationsstand
Werkstattwagen
Schaltschrank
Montageturm Mae West
Rohrkopplu. Mae West
Werkzeugkoffer
Brezise
Regalsysteme
Sitzbauteile
Impressum
Kontakt
Home
Service
So finden Sie uns
Projekte
Impressum
Kontakt
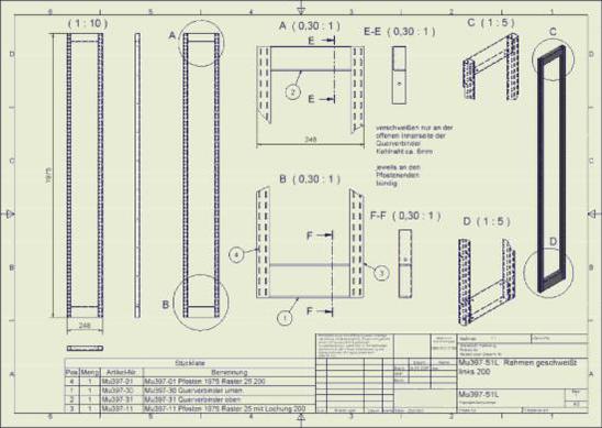
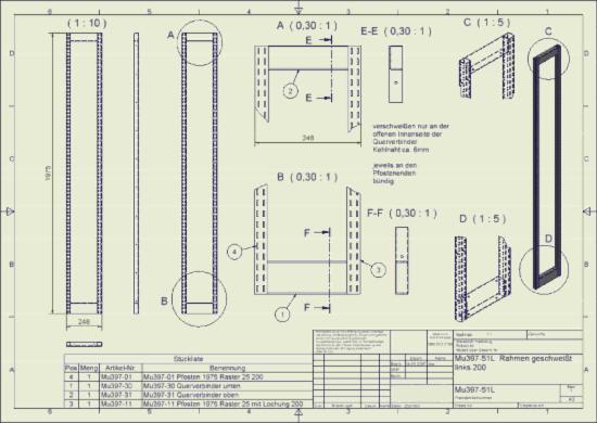
Regalsysteme und Aufbauanleitung:
LKW-Aufbau, Rampen
Pferdelaufband
Pferde Vibrationsstand
Werkstattwagen
Schaltschrank
Montageturm Mae West
Rohrkopplu. Mae West
Werkzeugkoffer
Brezise
Regalsysteme
Sitzbauteile
Teilen